新着情報

お知らせ

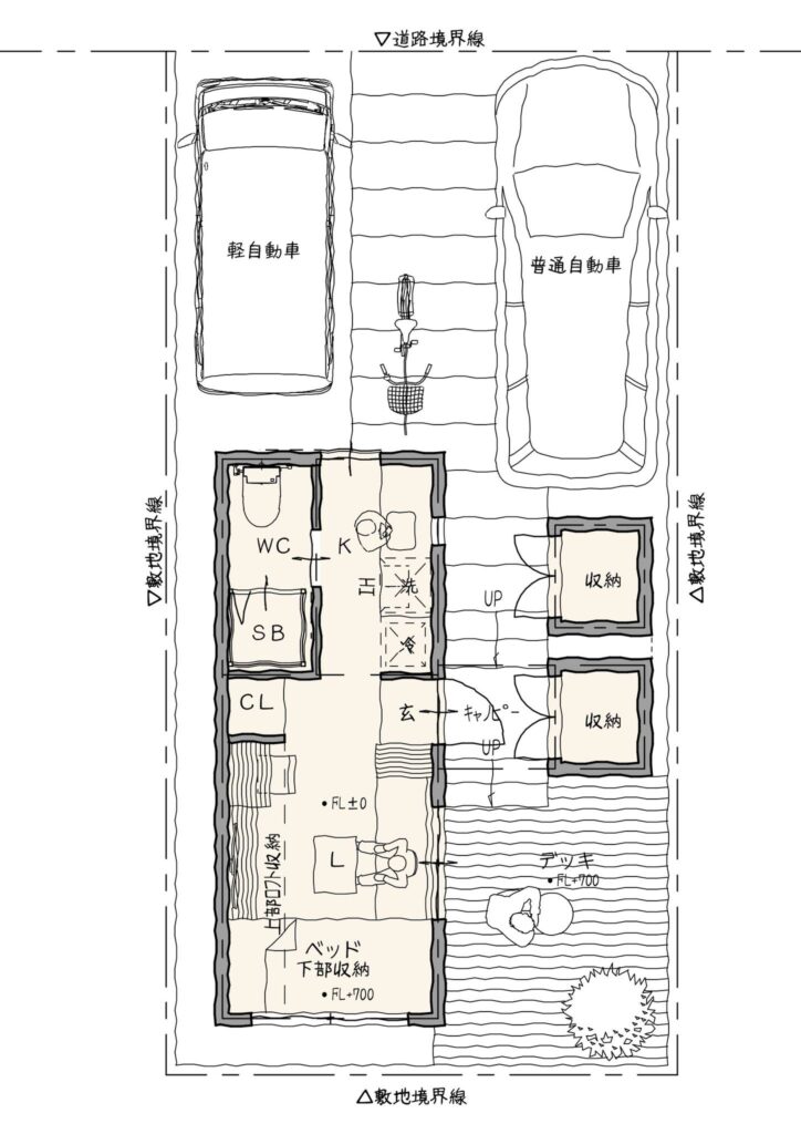
【勝手にタイニーハウスをプランシリーズ:大和郡山編その6】

「収納」でつくる「路地(アプローチ)」の演出

勝手にプランシリーズ、大和郡山編その6!

18坪という、一般的な建売住宅の半分以下の敷地条件で何ができるか?

1. 「収納」でつくる「路地(アプローチ)」の演出

単に収納を置くのではなく、2つ並べてその間をアプローチにするという発想です。

  • 心理的な奥行き: 道路から玄関までの距離は短いはずですが、屋根のかかった「路地」を通ることで、心理的なスイッチの切り替え(オンからオフへ)ができるシークエンスが生まれています。
  • 機能と意匠の融合: 外部収納が単なる「箱」ではなく、アプローチの壁面として機能しており、無駄がありません。

2. FL+700という絶妙なレベル操作

断面スケッチと平面図の「FL+700」という設定が、このプランの最大のキモです。

  • 視線の抜けと広がり: 室内側のベッド・カウンター・ソファの背もたれの高さと、外部デッキの高さを揃えることで、内と外が一体化した「大きな家具」のような空間になっています。
  • 包まれ感: 床(FL±0)に座った時、周囲のレベルが少し高くなることで、適度な囲われ感(コクピットのような安心感)が生まれそうです。
  • 目線のコントロール: デッキが高い位置にあることで、外部からの視線を遮りつつ、中からは空や緑が見えるというプライバシー確保の効果もありそうです。

3. 将来を見据えた「可変性」

  • 廊下化するキッチン: L型キッチンをやめて動線を確保し、将来の増築(ユニット追加)に備えるという計画はです。「今はミニマムに、将来は家族構成に合わせて」という柔軟な住まい方は、これからの時代に合っていると思います。

小さな敷地でも可変性に富んだプランが可能です!


お問い合わせ

  • お電話でのお問い合わせはこちら

    0743-53-4182

    【受付時間】9:00~17:00 (平日・第2,4土曜日)

  • \24時間受付/

    メールでのお問い合わせはこちら

    問い合わせする