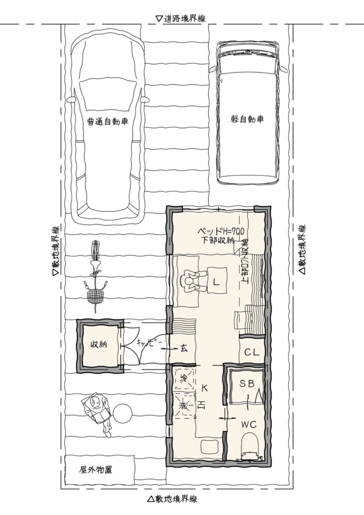
「約18坪」の土地を想定した、新しいタイニーハウスのプランをご紹介します。
一般住宅用の宅地としては半分以下の広さですが、タイニーハウスの視点で見れば、知恵と工夫で驚くほど豊かな空間に変わります。

今回のプランのスペックは以下の通りです。
「9帖」と聞くとワンルームのように感じるかもしれませんが、ここには広がりを感じさせる建築的な仕掛けが施されています。
建物の左下には、単なる物置以上の性能を持たせた「対候性のある外部収納ユニット」を配置。必要に応じて増設もできるイメージです。
この収納と玄関の間には簡易な屋根を設け、雨よけの庇(ひさし)を兼ねたキャノピーとしています。これにより、玄関までのアプローチが一度「絞られ(狭まり)」ます。 あえて視界を絞ることで、その奥にある**坪庭的な「ポケットガーデン」**へ抜けた時の開放感が際立つ仕掛けです。
前回のプランではアイランドキッチンをご提案しましたが、今回はL型キッチンを採用しました。
限られた空間において、L型は壁面を有効に使えるため、狭いわりには動線が確保しやすく、非常に使い勝手の良い空間になります。
今回のキッチンの最大の目玉は、「引出式IH」です。
これは、ビルトイン機器として固定するのではなく、引き出しの中にIH調理器(家電)を収納し、使う時だけ引き出すスタイルです。
(海外の参考画像を3枚掲載します)



お電話でのお問い合わせはこちら
【受付時間】9:00~17:00 (平日・第2,4土曜日)
メールでのお問い合わせはこちら
問い合わせする