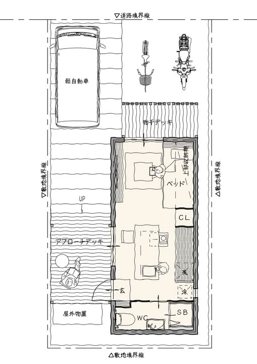
今回の「勝手にプランシリーズ」は、大和郡山編の第4弾。 テーマは「ワンルームマンションの戸建て版」です。
延床面積は17.39㎡(約5.26坪)。 水回りを含めても10.5帖という、超コンパクトな住まいのご提案です。
「ただ小さいだけじゃない?」 いいえ、一人暮らしだからこそ実現できる、贅沢で合理的な工夫を詰め込みました。

図面をご覧になって「この広さでアイランドキッチン?」と驚かれるかもしれません。 通常、狭小住宅では壁付けキッチンがセオリーです。
しかし、ここは一人暮らし専用の城。 誰かとすれ違う時の「動線の交差」を気にする必要がありません。だからこそ、あえて空間の主役としてアイランドキッチンを配置しました。
料理をして、そのままカウンターで食事をとる。 コンパクトながらも開放的で、最短動線で暮らせる。これは一人暮らし特有の特権です。
このプランの真骨頂は、建物の外側にある2つのデッキにあります。
1. プライバシーと開放感を両立する「物干しデッキ」 道路に面した窓は、視線が気になってカーテンやシャッターを閉めっぱなしになりがちです。それではせっかくの戸建てがもったいないですよね。 そこで、道路面に**「格子」**を設け、その内側を物干しスペースにしました。
2. 第2のリビング「アプローチデッキ」 玄関へ続くアプローチも、単なる通路ではありません。 一人暮らしなら来客もそう多くはないはず。ならば、ここもくつろぎスペースにしてしまいましょう。 天気の良い日は椅子を出して読書をしたり、コーヒーを飲んだり。 玄関までの動線とリラックススペースを兼ねた、無駄のない設計です。
駐車スペースには軽自動車に加え、バイクや自転車を置くゆとりもあります。 「広さ」ではなく「質」で選ぶ、そんなミニマルな暮らしの形はいかがでしょうか?
お電話でのお問い合わせはこちら
【受付時間】9:00~17:00 (平日・第2,4土曜日)
メールでのお問い合わせはこちら
問い合わせする