建売住宅の敷地面積が40坪以上というイメージが一般的な中で、今回ご紹介するのは、その半分未満、約18坪という「小さな土地」を最大限に活かしたタイニーハウスのプランです。
「狭い…」と感じるかもしれませんが、この制約があるからこそ生まれる、経済的にも自由度の高いライフスタイルに注目してみませんか?

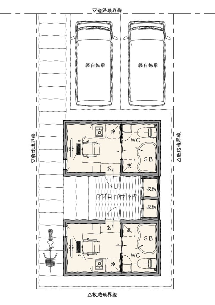
今回のタイニーハウスのプランは、事務所・SOHOとしての利用を想定しています。
なんと、この小さな敷地に2戸を配置する大胆なアイデアです!
提案したいのは、この2戸の活用方法です。
このスタイルなら、ローン返済額の半分を家賃収入で賄うことも十分に現実的になるのではないでしょうか。小さな物件だからこその初期費用の抑えやすさと、賃貸による収益性の高さ。まさにタイニーハウスの持つ経済的なメリットを最大限に活かしたプランです。
添付の図面をご覧ください。非常にコンパクトですが、事務所として必要な機能はしっかり詰め込まれています。
正直なところ、このプランは敷地のギリギリまで使っており、アプローチはまさに「犬走り程度の巾」。小さな空間ばかりを設計していると、寸法感覚が狂いそうになります(笑)。
しかし、このミニマムな空間が、無駄のない、集中できる自分だけのワークスペースを生み出します。
タイニーハウスは単なる「小さな家」ではありません。
低コストでマイホーム(またはマイスペース)を手に入れ、維持費(光熱費・固定資産税など)も抑えられる経済的なメリットに加え、「本当に必要なものだけ」に囲まれて暮らすミニマルな生き方、高い自由度が大きな魅力です。
今回のプランは住宅ではありませんが、この**「小さな空間を活かし、賢く、自由に暮らす」**というタイニーハウスの考え方は、きっと多くの方の興味を引くはずです。
あなたも、このタイニーハウスをベースにした「スモール・ビジネスライフ」を考えてみませんか?
お電話でのお問い合わせはこちら
【受付時間】9:00~17:00 (平日・第2,4土曜日)
メールでのお問い合わせはこちら
問い合わせする